Kontakt na makléře:
Černý Milan
Tel.: +420 608135458
Mobil.: +420 737851059
E-mail: archa-rk
seznam.cz
Tuto nemovitost nabízí:

ARCHA realitní kancelář
Plzeňská 113
15000 Praha 5
Tel.: +420 608135458
E-mail: archa-rk
seznam.cz
Web: www.archa-rk.cz
| Typ nabídky: | prodej |
|---|---|
| Lokalita: | Praha 6 - Břevnov |
| Kategorie: | Administrativní prostory a objekty |
| Evidenční číslo: | 5706 |
| Poslední editace: | 28.08.2025 |
| Podlaží celkem: | 6 |
| Třída energ. náročnosti: | G - Mimořádně nehospodárná |
| Cena: | 5 026 000 CZK / objekt |
| Poznámka k ceně: |
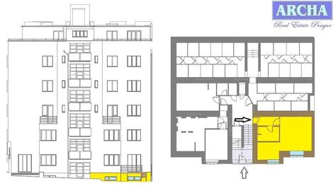
NABÍZÍME KE KOUPI nebytovou jednotka o dispozici 1+kk a celkové ploše 37 m2, která se nachází v přízemím podlaží šestipodlažního bytového domu na Břevnově.
Bytový dům se nachází těsně u ulice Belohorská, nedaleko od parku Královka, či sportovních areálů na Strahově.
Nebytová jednotka má dvoje okna a je směrována do vnitrobloku domu, do zahrady, zeleně.
Nebytová jednotka je vhodná jako advokátní, projektová či výuková kancelář, též jako zázemí firmy.
Vlastnictví: osobní
Dispozice: 1+kk
Celková plocha: 37 m2
Podlahová plocha: 37 m2
Podlaží: přízemí
K dispozici je ihned.
ARCHA realitní kancelář
PRAHA
Telefon: 737851059, 702072257, 608135458
Dat. schránka: vdc4dg
E-mail: archa-rk@seznam.cz
www.instagram.com/nemovitosti_archa
www.facebook.com/nemovitosti.archa
www.twitter.com/archa_life
www.archa-rk.cz Pronájem obchodních prostor Jihlava